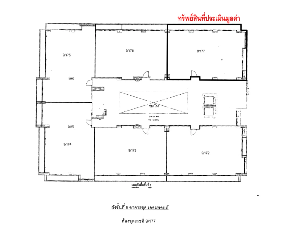
The Point No. 9/177
The Point is a residential condominium project suitable for family living. It has complete utilities and facilities and is conveniently located for transportation.
Located in a commercial business district. The general environment is residential and commercial. Consisting of a department store, supermarket, alternating office buildings and shops, the building is located on the road opposite Bangkok Hospital Siriroj. Or travel just 150 meters to Big C Place Phuket and just 1 km from Central Phuket.
THB 6,84x,xxx
Want to buy / Inspect
Working hours
Mon - Fri 10:00 am. - 18:00 pm.
Mon - Fri 10:00 am. - 18:00 pm.
Chat with us
Email us
Features :
- Building details: 8-story building, 17 years old
- Unit 9/177, 8th Floor
- Room size: 7.60 x 12.30 meters, usable area: 104.50 sq m, balcony area: 13.50 sq m
- Layout :3 bedrooms, 2 bathrooms, 1 living room/kitchen, 2-sided balcony
- Facilities: Passenger elevator, lobby, large swimming pool, fitness room, garden, underground parking.
- Security system: keycard access to the building, CCTV, and 24-hour security guards.
- Common area fee: 50 baht/sq m.
- Juristic person: Tel. 076-302-888, 082-654-9933
Location :
9/177, 8th Floor, The Point Condominium, Chaloem Phrakiat Ratchakan Thi 9 Road, Wichit Subdistrict, Mueang District, Phuket Province